
|
樓樓在農村別墅這行干了這么久,聽到最多的是業主的訴求:首先外觀一定要簡單又大氣,而且豪華上檔次,以前不明白,既然豪華上檔次怎么可能簡單呢!后來我才知道,換句話就是說房子一定要外觀好看,但是造價不能太高,也就是性價比!
今天樓樓給大家介紹一套新款農村三層樓房圖片,超性價比的那種。
戶型效果圖
戶型基本信息 開間:11.3米,進深:12.5米 占地面積:137.78平方米 建筑面積:414.19平方米 結構類型:框架結構
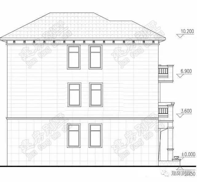
各個面的建筑立面圖:
外觀設計:第一眼看這套戶型,給人的感覺就是豪華大氣上檔次。尤其是它超級大的客廳上挑而形成的大窗和它大門亭。門亭的大氣象征著此別墅主人的身份地位,高度超過3.6米。總之此戶型的設計宗旨是:豪華的農村別墅,并不一定要面積大。
戶型平面圖
(點擊圖片擴大查看)
一層從門廳進入,大門并沒有直接對著大門,中間隔著墻體,隔墻可做神位,也可當作玄關。一個主臥室(帶衛生間)、一個次臥室、一個公共衛生間、廚房與餐廳、客廳相連,相互流通方便。哦,對了,客廳上挑。
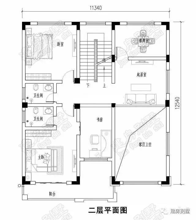
(點擊圖片擴大查看)
第二層和第一層的格局類似,只是少了客廳上挑的部分。一個主臥室(帶衛生間)一個次臥室,一個衛生間,一個書房,一個棋牌室、一個客廳,當然臥室需求緊張的可以把棋牌室改臥室。書房屬于主臥室的私人空間,這點設計比較合理。
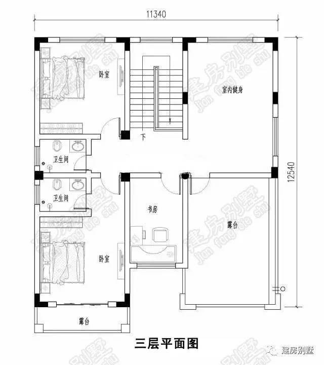
(點擊圖片擴大查看)
第三層也是如此,樓樓在此就不詳細說哦。不過要注意的是,三樓的書房和二樓的書房進入方式不同,細心的你發現了沒。
總體來看,此戶型相對結構類型簡單,框架方正,施工難度并不大,但是成品效果圖確實相當的大氣豪華。 轉載請注明出自別墅設計網:http://www.bjcyqiyejia.com/ 千套別墅設計帶別墅圖片 |

新農村四層獨棟復式別墅設計圖,設計豪華時尚
占地:140平方米
面寬13米三層新中式獨棟別墅設計圖,復式自建房戶型方案
占地:201.25平方米
三層新農村小別墅設計圖紙,占地120平米,客廳中空,帶大露臺
占地:120平方米
135平鄉村三層復式樓房設計圖,自建房推薦
占地:135平方米
小戶型農村三層房屋設計圖,占地120平米,布局非常合理,外表典
占地:120平方米
中式四合院風格別墅設計圖,平屋頂,書房、茶室、健身房一應俱
占地:370平方米
二層半房子設計圖及效果圖,客廳中空,南北通透
占地:160平方米
歐式二層小別墅設計圖紙(含外觀效果圖)
占地:141平方米
三層樓房設計圖紙含效果圖,外觀造型高低錯落,別致大方
占地:152.4平方米
新農村四合院別墅圖片及戶型方案圖,全套圖紙可施工
占地:154平方米左右
農村三層房屋設計圖紙,三層農村住宅設計效果圖,11米*10米
占地:100平方米
歐式風格三層別墅建筑設計圖,復式樓中樓結構
占地:138平方米
小戶型三層別墅房屋設計圖紙,占地80多平米,麻雀雖小五臟俱全
占地:80平方米
260平方米仿歐式二層別墅設計圖紙及效果圖,22X12米
占地:260平方米
經典農村三層樓房設計圖,10個不同尺寸戶型,各種戶型供您選擇
占地:多種
新農村私人別墅建筑設計施工圖,全套別墅設計圖紙
占地:多種戶型
農村二層四合院設計圖,秒殺各種洋別墅
占地:220平方米
簡簡單單的二層樓房的設計圖,24萬就能搞定
占地:120平方米
兄弟四間三層雙拼別墅設計圖,造價40萬左右
占地:210平方米
新農村一層平屋頂簡單自建房別墅設計圖紙,全套設計
占地:130平方米
11×10造價25萬帶神位平頂三層自建房設計圖
閱讀次數:29678次
2021年最流行的10套經典農村別墅,最愛那一套?
閱讀次數:25940次
進深8.5米,開間12米,帶堂屋的樓房設計圖怎么做?
閱讀次數:23817次
18萬搞定的農村二層別墅,詳細施工過程實拍!含別墅設計圖!
閱讀次數:17744次
5款帶落地窗的農村別墅,大氣的別墅就應該是這個樣子
閱讀次數:17217次
15套2017年最新潮二層農村別墅,這樣蓋既實用又上檔次!
閱讀次數:12834次
2021農村建的最多的2款二層小別墅戶型,爆款是有理由的
閱讀次數:11876次
農村自建房這樣預埋水電管,老師傅說規范又實用
閱讀次數:11471次
9X12米二層農村別墅,不超過規定面積還能有小院
閱讀次數:10618次
農村自建房打地基的費用是多少,需要注意哪些問題?
閱讀次數:10549次
