
|
20萬蓋農村小樓,30萬蓋農村豪華別墅,50萬帶家裝也能蓋起一套房屋設計大全,如果是50萬的主體,那又能建出什么樣的頂級農村豪宅? 其實這一切,首先你得有一個好的設計,然后找對施工隊。不然的話,同樣的錢、同樣的地,建出來的房子可就差別很大了。 下面都是網友投稿,造價都是50萬左右的農村別墅,我們來看看問題都出在哪,為什么同樣的造價,甚至更低的造價,別人的房子為何就比我的好? 第1套 造價65萬,總面積295平方米,位置:湖北
這套農村中式別墅效果圖的造型非常精美,素色的外墻瓷磚搭配紅色瓦頂,還有四周圍繞的綠植,呈現出一派和諧之氣。未采用農村歐式別墅常見的雕花梁托、花瓶欄桿、豪華落地窗,而是在結構上選擇傳統歐式元素。帶家裝65萬,造價也算合理,主體造價30萬。
第二套:造價60萬,占地15×10米,總面積378平方米,位置:江蘇 這是江蘇一位網友家的豪宅,參考“住宅公園”下面這套的圖紙,略做修改。2016年初建成,那時各種建筑材料鋼筋、混凝土、紅磚還沒有漲價,房屋主體加上裝修也才只花費了60萬,放到現在70萬不一定能搞定。
這是建成后的外觀,淡雅色的瓷磚,天藍色屋頂,也非常的美觀。院內停車,有院子的話,設計車庫反而是浪費現在不好批、面積有限的宅基地。
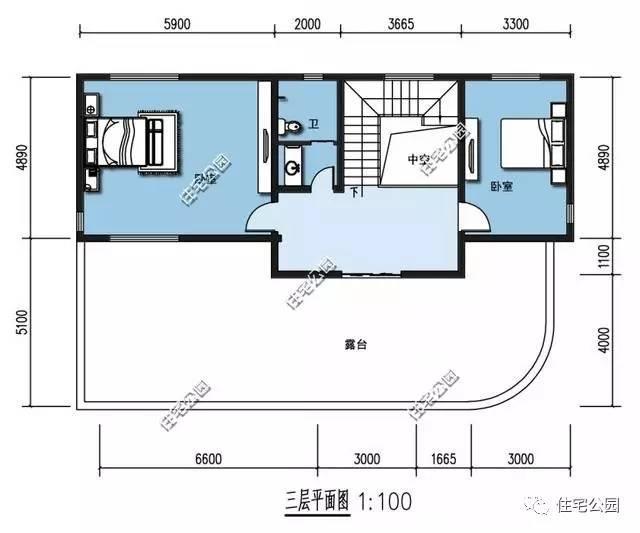
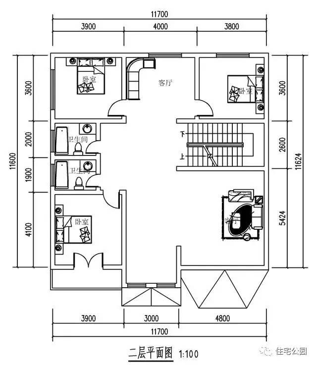
這是住宅公園的原始平面圖,相比外觀只是屋頂顏色改了一下,戶型圖上網友也做了一些調整。 對于原戶型的雙樓梯,家人頗有異議,最后決定取消了弧形樓梯做成臥室,火盆室改成餐廳,餐廳位置則改成雙跑樓梯了。這樣整棟房子的空間利用率就更大了,而且更符合鄉村住宅的習俗。
走進外大門,近看我們可以發現網友其實也是很懂的。大氣的大門,一樓不同于原始效果圖,采用文化石裝修外墻,更美觀、富于變化,也耐臟。
外內裝修也不差,誰說城里才用空調,咱農村,主臥、客廳空調也走起。
第3套 : 55萬帶家裝,姐夫施工,建筑面積400㎡, 位置:安徽 房子是全包給自家姐夫施工的,另外請哥哥協助。施工過程中,戶主在城里工作,從開工到建成也沒回去過幾次,但質量還是很放心的,400㎡的房子,做了一層裝修一共才55萬,果然有親人的地方才有家啊! 鋼混框架結構,這一套實在是太值了。
整體效果,紅、白、藍經典的美式三段配色,清新明亮堪稱經典。動靜、油煙分離,戶型非常適合家居,農村廚房單獨隔離開是很多人的追求,但是現在宅基地不好批,能實現真的是太美的一件事。
砌筑墻體時,構造柱位置做了留槎處理,能夠讓構造柱和墻體結合緊密,雖然并不是典型的馬牙槎“五進五出”的構造。但也比光溜溜直上直下的構造好多了。
在兩棟房子之間加裝玻璃頂,作為逢年過節回家備用車庫使用,平時父母在家的時候,吃了晚飯在這里納涼,聊天打牌……小日子想想就覺得愜意。
再來看看房子內部最終效果,目前至裝修了一層,主要給父母住。家具和裝修統一的歐式風格,大氣美觀,就這陸先生還跟我們說是簡單裝修,真是未免太過謙虛了。
第四套 50萬,江西 三層別墅,50萬建出百萬效果。外墻涂刷米色真石漆營造素雅大氣的別墅格調,鍍膜玻璃保護到家人的隱私還能增添一絲時尚元素,門廳羅馬柱和窗楣采用歐式浮雕裝飾噴涂金色漆料點綴凸顯整體的華貴大氣之感。 動靜分離,老人房、堂屋、造型整個都很符合南方人的居住需求。
真正的鋼混框架結構,2層半,建筑面積328平米。50萬的主體造價確實蠻高,但是對比框架結構的質量,這價格其實算很中肯的。
第五套 造價55萬,面積325㎡,位置:廣東 別墅仿照托斯卡納風格自建而成,占地15X10米,建筑總面積325平方米。有車庫、老人房。但是這套卻被網友們罵慘了。主要還是看上去太像教堂了,不符合中國農村的審美,就算在城市,作為家居,除了宗教認識,一般人也確實很難喜歡上這樣的風格。
當然網友不喜歡,不僅僅是因為外觀風格,這套的設計既不滿足南方農村的居住需求,也不能滿足北方的居住需求,空間使用率也低。
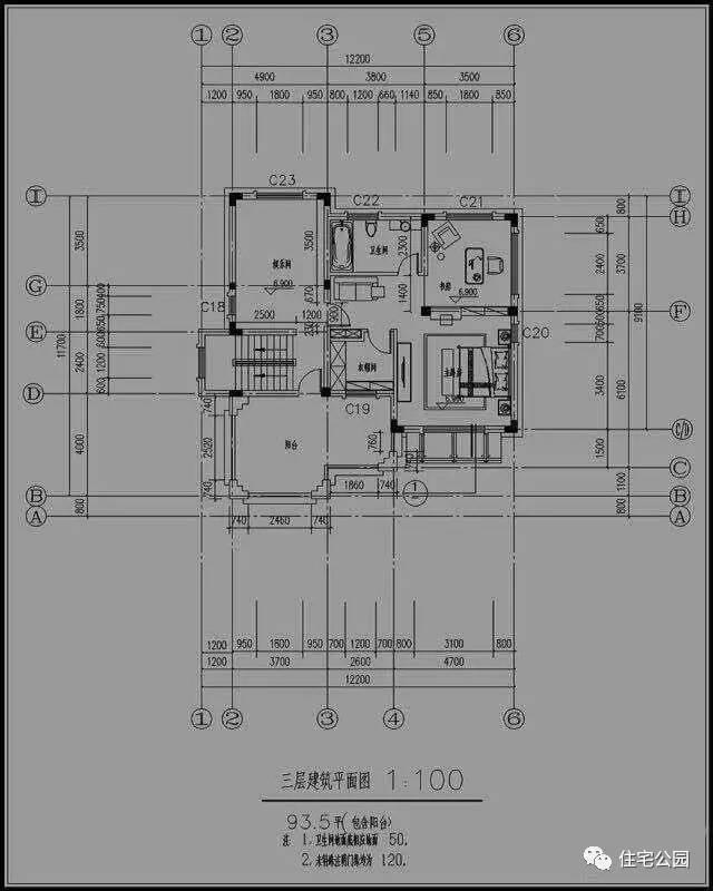
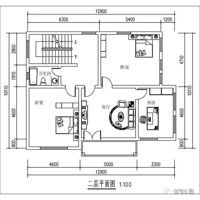
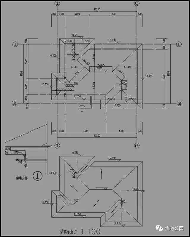
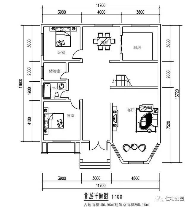
三層布局:
第六套 造價40萬,建筑面積364㎡, 位置:四川 計劃生育那是城里人和公務員、企事業單位的事,在農村其實很多90后也是有兄弟姐妹的,很多家庭是有兩兄弟。都在外面打拼、父母年事漸高、成家立業后老婆孩子在家、老房子太破舊了.......各種因素下,農村起棟別墅這么看都是必需的。 房子最開始想的是蓋磚混結構,但是這幾年地震頻繁,誰也保不準會有什么閃失,還是蓋成框架結構的實用。鋼材花了9噸,水泥90噸,還有亂七八糟的一些費用,主體加起來40萬上下。這造價,對比前面一套55萬,是不是瞬間KO了 !
1樓空間很大,但是沒有設計老人房,也沒有堂屋,如果要參考這一套,戶型上看一看做適當的改善。
相比一樓,2、3樓的戶型布局就很符合農村人的生活習慣。大露臺也方便晾曬。
第七套 主體造價60萬,位置:廣東湛江 見多了農村別墅實拍,對于造價心里也有譜,大抵上農村蓋房基本上在40萬左右上下波動,但不包括有些土豪斥巨資自建百萬豪宅,靚麗的外形配上穩重大氣的內在布局,說其是當地第一房一點都不為過,可真正的百萬農村豪宅到底長啥樣,廣東湛江蓋房實拍告訴你!
別墅設計規整有序,三層的布局從根本上解決了農村人多房間數不夠的情況發生,同時挑空客廳的設計也令居室生活更富有情調。 柴火房,土豪也愛家鄉的味道!一樓只喲一個老人房,也符合現在的實際居住需求,老人住一樓方便,年輕人住2樓、3樓,愜意。
第八套 50萬,建筑面積331㎡,位置:南方 11X10的占地,算是豪華設計,精巧實用一點都不過時,適合農村居住!
房子一共是三層,農村人多,臥室數量也相應的較多,首層就有兩個臥室,以滿足日常生活所需,客廳與餐廳之間通過軟隔分開,打造出獨屬于自己的空間設計。
磚混35萬,框架50萬造價戶型推薦 第一套 占地尺寸:12.24m*12.7m 占地面積:149㎡ 建筑面積:391㎡ 總 高 度:11.2m 建筑情況:共設4室 1書房 2備用房 1儲藏室 1健身房 2廳 4衛 1廚 1陽臺 2露臺
第二套 占地尺寸:12.24米*12.18米 占地面積:140平方米 建筑面積:255平方米 總 高 度:9.67米 建筑情況:4室 3廳 1堂屋 3衛 2廚 1洗衣間 2陽臺
該預算只是主體結構毛坯造價,全國平均水平,不含交通費、裝修。 轉載請注明出自別墅設計網:http://www.bjcyqiyejia.com/ 千套別墅設計帶別墅圖片 |

兄弟三層雙拼房屋設計圖,帶效果圖,戶型好
占地:256平方米
預算20萬的農村三層房屋設計圖方案,帶外觀效果圖
占地:115平方米
140平方米新農村四層房屋設計圖紙,農村自建推薦
占地:140平方米
農村蓋房設計大全一層房子的設計圖紙,色調清新靚麗
占地:220平方米
180平方米湖南農村雙拼小別墅設計圖紙帶外觀圖17X10米
占地:180平方米
帶地下室設計三層自建房別墅設計圖,復式挑空客廳
占地:192平方米
185平方米二層自建別墅設計施工圖紙及外觀效果圖,15x13米
占地:186平方米
簡簡單單的二層樓房的設計圖,24萬就能搞定
占地:120平方米
經典的農村三層小樓房設計圖,外觀圖片時尚、精致
占地:100平方米
260平方米仿歐式二層別墅設計圖紙及效果圖,22X12米
占地:260平方米
140平方米三層別墅設計圖紙,帶屋頂花園
占地:142平方米
170平方米新農村現代樓中樓三層別墅設計施工圖紙及效果圖
占地:170平方米
農村一層平房別墅設計施工圖效果圖,外觀簡約時尚,17萬到19萬
占地:168平方米
新農村自建三層復式結構房屋別墅設計圖紙及效果圖
占地:138平方米
復式大客廳帶旋轉樓梯二層別墅設計圖,大廳很闊氣
占地:193平方米左右
120平方米新農村二層自建房屋設計圖紙大全14x9米
占地:120平方米
三層帶車庫農村別墅設計圖紙(含外觀效果圖)
占地:147.7平方米
帶庭院的農村一層別墅圖紙設計,外觀時尚好看
占地:184平方米左右
最美二層樓別墅圖片大全及全套建筑設計圖紙,20萬左右
占地:140平方米
農村蓋平房設計大全圖,鄉下建房一層戶型圖及效果圖
占地:160平方米
11×10造價25萬帶神位平頂三層自建房設計圖
閱讀次數:29678次
2021年最流行的10套經典農村別墅,最愛那一套?
閱讀次數:25940次
進深8.5米,開間12米,帶堂屋的樓房設計圖怎么做?
閱讀次數:23817次
18萬搞定的農村二層別墅,詳細施工過程實拍!含別墅設計圖!
閱讀次數:17744次
5款帶落地窗的農村別墅,大氣的別墅就應該是這個樣子
閱讀次數:17217次
15套2017年最新潮二層農村別墅,這樣蓋既實用又上檔次!
閱讀次數:12834次
2021農村建的最多的2款二層小別墅戶型,爆款是有理由的
閱讀次數:11876次
農村自建房這樣預埋水電管,老師傅說規范又實用
閱讀次數:11471次
9X12米二層農村別墅,不超過規定面積還能有小院
閱讀次數:10618次
農村自建房打地基的費用是多少,需要注意哪些問題?
閱讀次數:10549次
