
|
現在農村的雙拼別墅效果圖一棟棟的隨處可見,不過看來看去樣式差不多,都是換湯不換藥,讓不少的人吐槽咱們農村人的品味。今天帶來9套戶型,風格各異,款式絕對新穎,隨便挑一款都是引全村仿建的節奏。
占地尺寸:11.1mX13.1m 占地面積:147㎡ 建筑面積:321㎡ 總 高 度:10.08m
米色外墻瓷磚與朱紅色琉璃瓦屋面搭配,呈現一股安詳之氣,木質窗柩與金屬窗框也碰撞出不一樣的火花。
共設7室 3廳 5衛 1廚 1儲藏室 2陽臺 1露臺
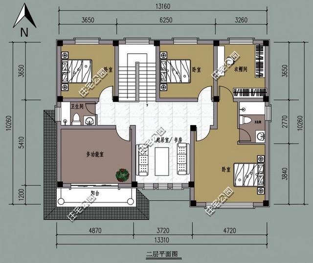
占地尺寸:11.9mX16.9m 占地面積:139㎡ 建筑面積:398㎡ 總 高 度:11m
經典而優雅的法式別墅戶型方正對稱,符合傳統美學。大氣簡約的方柱沒有繁復的歐式浮雕,更顯穩重。
共設7室 3廳 5衛 1廚 1露臺
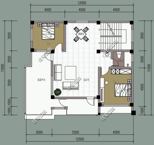
占地尺寸:12.9mX11m 占地面積:136㎡ 建筑面積:230㎡ 總 高 度:11m
這套充滿小資情調的現代住宅適合年輕人自建,不規則的別墅造型、大面積的玻璃窗與圍欄、各種材料裝飾的外墻為別墅注入生動的氣息。
共設4室 5廳 1書房 4衛 1廚 1車庫 1陽臺 3露臺
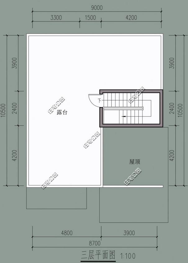
占地尺寸:12.2mX12.5m 占地面積:145㎡ 建筑面積:354㎡ 總 高 度:12.6m
這套別墅最大亮點是精致的花瓶圍欄歐式浮雕裝飾,還有高亮度的弧形玻璃落地窗,在農村經久不衰的歐式別墅果然有它的獨到之處。
共設6室 5廳 5衛 1廚 1車庫 3陽臺 2露臺
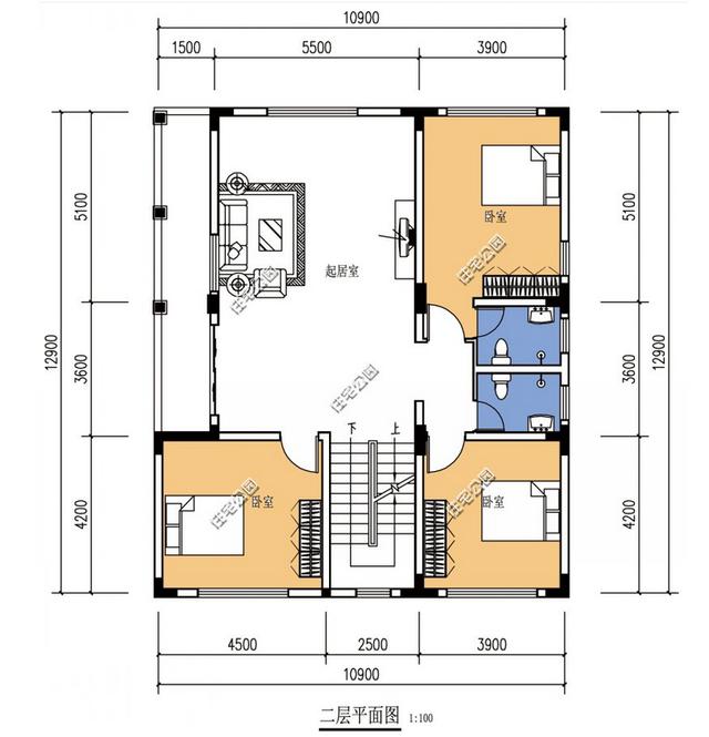
占地尺寸:9.2mX13.1m 占地面積:110㎡ 建筑面積:201㎡ 總 高 度:9.65m
流暢的現代化設計無需過多的裝飾,更加注重展現建筑結構的形式美,和不同色彩搭配的效果。
共設2室 1廳 2衛 1廚 1車庫 3陽臺 1露臺
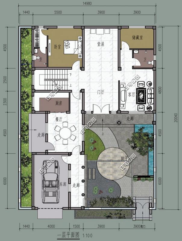
占地尺寸:15mX20m 占地面積:300㎡ 建筑面積:341㎡ 總 高 度:10.62m
這套別墅在傳統的院落式住宅上應運而生,將傳統院落式精髓貫穿于整體設計思想當中,用現代都手法加以簡化而生,應運而出這套更為符合現代農村居住需求的院落式別墅。
共設4室 3廳 1堂屋 5衛 1廚 2儲藏室 1車庫 2露臺
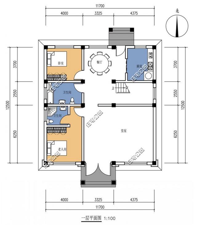
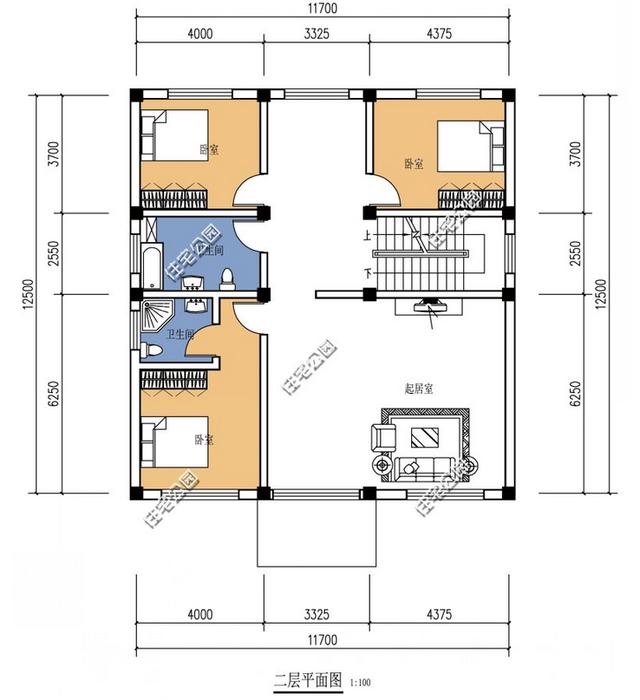
占地尺寸:12.5mX13.5m 占地面積:148㎡ 建筑面積:252㎡ 總 高 度:9.26m
簡潔落白的外墻置入金屬窗框,恰如其分的營造出清澈、舒適而雅致的氛圍。
共設6室 2廳 1廚 4衛 1門斗 1陽臺
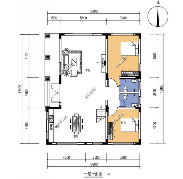
占地尺寸:13mX15.2m 占地面積:158㎡ 建筑面積:283㎡ 總 高 度:10.5m
大面積的玻璃窗使空間具有足夠的自然通風與光線,外墻溫馨和諧的色彩搭配讓別墅整體多了一份韻味。
共設5室 2廳 4衛 1廚 1柴火房 2陽臺
占地尺寸:13.5mX10.6m 占地面積:145㎡ 建筑面積:273㎡ 總 高 度:10.1m
朱紅與暖黃色的交替,營造了住宅所需安詳又寧靜的氛圍,仿佛對稱的造型卻又添加不同的裝飾讓人眼前一亮。
共設5室 3廳 4衛 1廚 1辦公室 1陽臺 轉載請注明出自別墅設計網:http://www.bjcyqiyejia.com/ 千套別墅設計帶別墅圖片 |

10套農村經典二層樓房設計圖紙,多戶型,多尺寸,總有一款適合
占地:多種
最好看大氣的豪華三層樓房設計圖,客廳中空,旋轉樓梯
占地:340平方米
現代鋼結構別墅設計圖及效果圖,現代三層房屋精選
占地:40萬
農村四間兩層樓房設計圖,外觀時尚,戶型實用
占地:180平方米
農村二層樓建房造型圖及全套施工圖紙,占地110平米左右,帶地下
占地:110平方米
160平方米農村二層別墅設計效果圖帶CAD建筑圖
占地:160平方米
130平左右三層樓房設計圖,新農村住宅自建推薦
占地:128平方米
簡單實用二層雙拼樓房設計圖,造價30萬左右
占地:180平方米
新農村三層別墅設計圖紙及效果圖,全套cad建筑圖
占地:119平方米
2021年新款別墅外觀圖,新中式風格,比簡歐大氣,時尚
占地:135平方米
農村蓋房設計大全一層房子的設計圖紙,色調清新靚麗
占地:220平方米
二層平頂別墅設計圖,漂亮經濟實用二層農村小別墅最新房屋設計
占地:多種戶型
帶雙車庫的新中式二層四合院別墅設計圖,戶型布局實用
占地:321平方米
鄉下一層自建養老平房戶型圖及全套圖紙,占地面積200左右
占地:200平方米
240平方米新農村四合院兩層樓房施工設計圖紙帶外觀圖
占地:234平方米
現代風格三層別墅設計圖紙和效果圖,農村自建精選
占地:129平方米
新農村二層帶庭院的小別墅設計圖及效果圖
占地:137平方米
150平米簡單大方的三層農村自建房設計圖,坡層頂,色彩鮮明,布
占地:150平方米
新款農村三層雙拼聯體別墅戶型圖,客廳中空,單戶120平米左右
占地:240平方米
120平方兩層房子設計圖及圖片,外觀大方好看,內部結構合理
占地:120平方米
11×10造價25萬帶神位平頂三層自建房設計圖
閱讀次數:29678次
2021年最流行的10套經典農村別墅,最愛那一套?
閱讀次數:25940次
進深8.5米,開間12米,帶堂屋的樓房設計圖怎么做?
閱讀次數:23817次
18萬搞定的農村二層別墅,詳細施工過程實拍!含別墅設計圖!
閱讀次數:17744次
5款帶落地窗的農村別墅,大氣的別墅就應該是這個樣子
閱讀次數:17217次
15套2017年最新潮二層農村別墅,這樣蓋既實用又上檔次!
閱讀次數:12834次
2021農村建的最多的2款二層小別墅戶型,爆款是有理由的
閱讀次數:11876次
農村自建房這樣預埋水電管,老師傅說規范又實用
閱讀次數:11471次
9X12米二層農村別墅,不超過規定面積還能有小院
閱讀次數:10618次
農村自建房打地基的費用是多少,需要注意哪些問題?
閱讀次數:10549次
