
|
年輕的時候父親辛苦養大兄妹二人,如今即將要到退休的年紀,江西兩兄妹便商量著替父建起一棟別墅二層設計圖紙,因哥哥常年在外工作,只有逢年過節才能回家,妹妹便也在旁邊起了一棟一模一樣的自主,以后也便于照顧老父。 樓主也是個牛人,別墅平面圖,效果圖都是自己畫的的,自己本就是設計師就是好啊! 別墅效果圖:
效果圖和平面方案都改了好幾次,最終確認用這個,樓主堅持三層要用尖頂封閉式設計,可以做成娛樂休閑室。 一層平面圖:
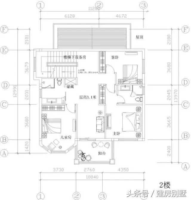
二層平面圖:
三層平面圖:
樓主家本來沒有這么大地基,是將鄰居家地基買下來了,選好日子就準備動工了,開工大吉:
樓主家離市區只有3公里左右,自己開車幾分鐘就到了,生活很便利,又遠離市區的喧囂,又能過這種田園般的生活不知道要令多少人羨慕。 準備挖地基,做墊層:
基礎成果圖,地基深度原定1米,后來考慮到老家那邊易發大水,家里地基地勢也較低,就挖了2米:
1000平米的地基,不可能全部用來建房,別墅配上庭院設計才更完美,庭院設計也是樓主自己做的: 別墅住宅庭院效果圖
第一層成品圖:
農村做房子的師傅,習慣沿用傳統工藝,弧形窗戶和門樓以前幾乎沒有人會做,所以做的有瑕疵在所難免,除非找專業施工隊: 第二層成品圖:
預埋水管應注意的事項:(經驗,以后建房也許會用得著) 1、排水管和排污管應分開; 2、排水管直徑應不少于50毫米,排污管直徑不少于110毫米,主管道不少于75毫米; 3、排水管和排污管最好都有存水彎; 三層成品圖:
室內裝修設計也是樓主自己設計的,我們看下一到三層的室內布局,一層室內效果圖:
二層室內效果圖:
三層室內效果圖:
最后看一下樓主家房子建起來外觀效果:(非常大氣加霸氣呀,我想這在村子里非常矚目吧,就是一個建筑景點嘛!
兩棟房子是對稱的,這倆房子建起來在農村是相當亮眼了,閑余飯后談論的肯定不在少數,要是樓樓也有這么好的地基,再也不想住市里100來平米的鴿子籠了,建棟別墅做小別墅主人,那感覺想想都好美。 轉載請注明出自別墅設計網:http://www.bjcyqiyejia.com/ 千套別墅設計帶別墅圖片 |

兩層樓房設計圖,兩層新農村樓房圖紙,外觀典雅古樸
占地:140平方米
鄉村三層簡單自建房子設計圖,全部建好34萬左右,外觀簡潔
占地:127.912平方米
80平農村房屋設計圖,小戶型自建房三層別墅推薦
占地:未知
新農村二層住宅設計圖紙,簡單別墅設計圖(含效果圖)
占地:77.6平方米
帶地下室的農村三層雙拼別墅設計圖,復式戶型,面寬23米
占地:261.6平方米左右
農村三層歐式別墅豪宅戶型圖設計方案,復式中空客廳+旋轉樓梯
占地:134.84平方米
鄉下120平米二層樓房設計圖,23萬就可以建漂亮別墅
占地:120平方米
歐式三層小洋樓設計圖,外觀氣派,典雅、高貴
占地:145平方米
漂亮的農村三層小樓房設計圖,簡單大氣,帶車庫
占地:150平方米
160-170平方米二層自建別墅設計CAD圖紙帶效果圖,田園風
占地:167平方米左右
四層別墅豪宅外觀效果圖及全套施工圖,高端歐式風格
占地:176.97平方米
鄉村高檔四層豪華別墅自建房設計圖,一層不帶餐廳廚房戶型
占地:147平方米
兄弟合建房新農村三層雙拼別墅建筑圖紙及效果圖,300平方米
占地:301平方米
2021年經典新中式三層別墅設計圖紙,新款自建房戶型圖
占地:158.19平方米
130平方米別墅設計圖紙(含外觀效果圖,)三層別墅設計方案
占地:135平方米
農村一層7字型平房別墅設計圖,“L”自行戶型,外觀簡約低調
占地:213.39平方米
新農村三層別墅設計圖紙及效果圖,全套cad建筑圖
占地:119平方米
170平方米歐式三層雙拼別墅建筑設計圖紙及效果圖片
占地:172平方米
豪華高端三層帶地下室別墅設計圖,可帶電梯
占地:210平方米
農村二層樓房設計圖帶外觀圖片,造價20多萬,13.3x11
占地:146平方米
11×10造價25萬帶神位平頂三層自建房設計圖
閱讀次數:29678次
2021年最流行的10套經典農村別墅,最愛那一套?
閱讀次數:25940次
進深8.5米,開間12米,帶堂屋的樓房設計圖怎么做?
閱讀次數:23817次
18萬搞定的農村二層別墅,詳細施工過程實拍!含別墅設計圖!
閱讀次數:17744次
5款帶落地窗的農村別墅,大氣的別墅就應該是這個樣子
閱讀次數:17217次
15套2017年最新潮二層農村別墅,這樣蓋既實用又上檔次!
閱讀次數:12834次
2021農村建的最多的2款二層小別墅戶型,爆款是有理由的
閱讀次數:11876次
農村自建房這樣預埋水電管,老師傅說規范又實用
閱讀次數:11471次
9X12米二層農村別墅,不超過規定面積還能有小院
閱讀次數:10618次
農村自建房打地基的費用是多少,需要注意哪些問題?
閱讀次數:10549次
