
|
平常農村老家只有老人和小孩在住,這是現如今中國家庭一個很普遍的現象,但是哪怕只有老人,也要讓他住的舒服,跟著新農村建設的腳步建起農村小別墅圖紙,但是空置著未免浪費,于是一層用來住,剩下三層都用來出租,老人家的生活費都有著落了。 我們去看看浙江這戶人家商住兩用房自建過程... 設計別墅效果圖:
房子開間11.4,進深12米,因三層和四層用來出租,所以為了方便就設計了兩個樓梯。 一層平面圖(修改前):
一層平面圖(修改后):
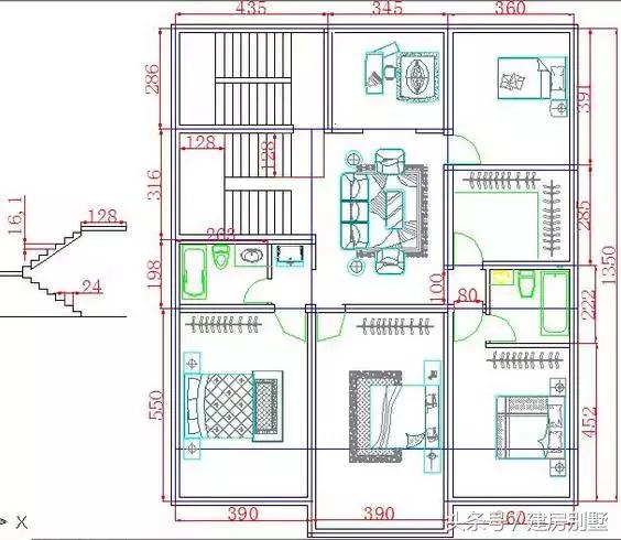
二層平面圖(修改前):
二層平面圖(修改后):
三層平面圖(修改前):
三層平面圖(修改后):
空間利用率極高,連樓梯下面都被用來做衛生間了... 挖地基用了半天的功夫,可以看到附近都是在做新房的:
因土質較硬就沒有必要去鉆樁,直接打地基,扎鋼筋澆混凝土就可以:
釘完模板澆地梁,澆完地梁要等15天左右,混凝土硬了才可以開始下面工作,不算墊層,用了大概80方的水泥。 回填泥土:
一層層高3.4米,二層2.9米,三層2.9米,四層類似于閣樓,層高較二三層還要低,你覺得這個層高合理嗎?
施工隊說回填之后用一層塑料薄膜覆蓋,可以防潮,你們家鄉蓋房防回潮是怎么做的呢? 砌墻中:
封頂大吉,搞好外墻粉刷,準備室內裝修... 側面:
背面:
一樓一部分用來做車庫,可以出租。 客廳電視機墻裝修:
室內墻上貼的大塊瓷磚,美觀又容易搞衛生,房子還在裝修中,未完待續...商住房并不是所有人都可以建的,要看地基的位置了,地理位置較偏只能自住,如果地理位置好那就再好不過了,自己可以住別墅的同時,還能當當包租婆收收房租,小日子別太愜意哦! 轉載請注明出自別墅設計網:http://www.bjcyqiyejia.com/ 千套別墅設計帶別墅圖片 |

170平方米新農村現代樓中樓三層別墅設計施工圖紙及效果圖
占地:170平方米
高端豪華三層別墅住宅設計方案圖,歐式外觀風格
占地:170平方米
新款三層豪華大氣歐式別墅設計圖,3種戶型設計方案
占地:125平方米左右
12X14米四層農村自建別墅設計圖,功能設計豐富齊全
占地:157平方米
新農村二層半房屋設計圖紙及效果圖,別墅設計圖精選
占地:113平方米
新農村二層小別墅全套設計圖紙(含外觀效果圖)
占地:85.6平方米
帶獨立堂屋的農村自建房設計,二層別墅設計方案圖
占地:109平方米左右
戶型經典的鄉村雙拼別墅房屋設計圖,帶外觀效果圖片
占地:192平方米
三層農村自建房別墅設計圖紙,大廳中空,外觀高端大氣
占地:230平方米
新中式一層別墅設計圖紙,農村自建平房戶型方案圖
占地:183.7平方
農村10萬元一層小別墅設計圖紙,戶型實用又合理
占地:130平方米
新農村共用堂屋和樓梯的雙拼別墅設計圖紙,戶型布局空間利用率
占地:207平方米左右
小型三層別墅cad建筑圖紙帶效果圖,帶屋頂露臺
占地:101平方米左右
帶電梯高端四層別墅房屋設計圖,外觀圖大氣、上檔次
占地:220平方米
徽派3層農村小別墅設計圖,廣東新農村住宅設計圖集
占地:110平方米
帶中式小院的二層仿古別墅設計圖,小戶型自建房設計,外觀美極
占地:82.94
新農村現代簡約別墅建筑設計圖紙(含外觀效果圖),28萬左右
占地:107平方米
經濟實用型二層農村小別墅設計圖,造價25萬內,外觀看起來時尚
占地:120平方米
二層農村房屋設計圖紙,帶效果圖和全套施工方案圖
占地:多種戶型
12×11米兩層農村建房圖紙,農村建房最佳戶型,簡單的風格
占地:140平方米
11×10造價25萬帶神位平頂三層自建房設計圖
閱讀次數:29678次
2021年最流行的10套經典農村別墅,最愛那一套?
閱讀次數:25940次
進深8.5米,開間12米,帶堂屋的樓房設計圖怎么做?
閱讀次數:23817次
18萬搞定的農村二層別墅,詳細施工過程實拍!含別墅設計圖!
閱讀次數:17744次
5款帶落地窗的農村別墅,大氣的別墅就應該是這個樣子
閱讀次數:17217次
15套2017年最新潮二層農村別墅,這樣蓋既實用又上檔次!
閱讀次數:12834次
2021農村建的最多的2款二層小別墅戶型,爆款是有理由的
閱讀次數:11876次
農村自建房這樣預埋水電管,老師傅說規范又實用
閱讀次數:11471次
9X12米二層農村別墅,不超過規定面積還能有小院
閱讀次數:10618次
農村自建房打地基的費用是多少,需要注意哪些問題?
閱讀次數:10549次
