
|
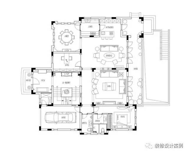
本案為獨棟別墅設計,整體風格為美式。在居室里,設計師大量的做了墻面的膏線處理,強調了居室的裝飾性。在色彩方面,以藍白為主,搭配著自然田園元素的軟裝,在金屬材質的配合下,空間華貴清新。 挑高的客廳里運用了大量的膏線勾勒,靜謐的粉藍裝飾,浪漫的花鳥壁畫將自然情調注入空間。藍色的布藝與金色材質結合,在大面積印花地毯的鋪設下,空間貴氣感十足。
豐富的石膏線堆疊出繁復且恢弘的氣勢,使墻面更加立體具有層次性。輕描淡寫的水墨畫、淺灰皮質沙發、異域風地毯和復古金屬穿衣鏡,碰撞出典雅創意的門廳氛圍。
從門廳入戶進來的走廊上,黑白格紋強調了視覺質感,走廊連接著地下一層與樓上。兩側布置了玄關柜,藝術擺件與田園花鳥圖,使空間顯得亦時尚亦浪漫。
地下由于天花頂比較低矮,所以在色調上以淺色系為主,家具的布置也比較寬松,超大的落地窗,將明媚的日光和綠意盎然的自然引入,極大減輕了空間本身帶來的壓抑。
臥室也運用了典線裝飾,凸起的天花頂拉伸了空間的高度。溫暖雅情的藍白色調下,床頭自然花鳥畫與印花地毯給空間帶來了活力,營造出盈動的輕微夢幻。
女孩子的房間處處充滿了小心思,木條天花頂梁與籠鳥壁紙,彰顯著自然屬性。黃藍床幔、白色床品和置物柜構筑清新的空間氛圍。華麗的吊燈,則增添幾分時尚質感。
男孩子的房間同女孩子的房間風格和布置陳列上,保持同樣狀態。只在色彩上做了調整,以藍白為主。自然元素和條紋元素的運用,碰撞出強烈的視覺效果。
衛生間以灰白大理石鋪陳,理石的紋理宛如水墨隨性自在。馬桶和淋浴區做了玻璃隔斷,浴缸則做了一層地臺,用于劃分空間。內置的燈帶,暖黃色的光線增添了空間的奢華氣質。 圖紙之家-專注農村別墅/自建房設計18年,集合國內200余位經驗豐富的設計師,被評為口碑最好的農村建筑設計公司! |

面寬8米農村二間二層小別墅設計方案,施工簡單造價低
占地:73.77平方米
占地130平方米二層鄉村別墅自建房圖紙設計圖,效果圖好看
占地:131.658平方米
新中式二層雙拼樓房設計圖,單戶面積100平米左右,實用美觀
占地:200平方米
五十萬二層半鄉村別墅,客廳挑空設計,占地200平米左右
占地:200平方米
16x14米三層雙拼別墅設計圖,外觀精致大氣內里實用,兄弟建房上
占地:217.28平方米
新農村三拼別墅三戶連體別墅設計圖,設計新穎美觀
占地:380平方米
帶車庫四層別墅外觀效果圖及設計圖紙,戶型方正通透
占地:115平方米
農村兩層新中式仿古四合院別墅戶型圖,小型占地不到200平
占地:193平方米
簡簡單單一層農村自建別墅方案,布局緊湊又不擁擠
占地:133.55平方米
95平方米農村四層房屋設計圖,8米X11米 ,預算37萬
占地:95平方米
2026最好看的農村三層樓房圖片及施工圖紙,客廳寬敞
占地:120平方米
帶架空層的兩層別墅設計圖,通透又明亮,建在農村絕對有面子
占地:106.79平方米
新中式二層雙拼別墅農村自建房子設計圖紙,面寬19米
占地:240平方米左右,單
占地百平三層歐式別墅設計圖,回到家鄉建一棟,大氣美觀有內涵
占地:99.94平方米
現代風格精致兩層農村自建房住宅設計圖,帶儲藏室
占地:163平方米
12米×10米左右一層別墅平房戶型圖及設計圖,造價低
占地:110平方米
?13.5x9米這尺寸火了!好多人家照著建這款二層別墅,簡單實用
占地:115.11平方米
二層農村別墅新風尚,簡約實用,性價比高,美麗又實惠
占地:126平方米
鄉下一層自建養老平房戶型圖及全套圖紙,占地面積200左右
占地:200平方米
回農村建養老房,還是一層平頂戶型最合適,不單單只是省錢
占地:102.24平方米
推薦:10套新農村自建房設計圖,2026年最新設計
閱讀次數:4825737次
100套鄉村別墅圖片大全,2026年最新設計
閱讀次數:2492203次
6款農村蓋一層平房的設計圖,10萬元就能建起來
閱讀次數:1852637次
這11個一層農村自建房別墅火爆了朋友圈!我最喜歡戶型十!你呢
閱讀次數:750268次
農村6萬元建一層小別墅圖,你敢相信嗎
閱讀次數:567686次
農村5萬塊就能自建房,6套普通房子設計圖分享,你沒看錯!
閱讀次數:419410次
8套農村漂亮三間平房圖片,非常適合在農村修建!
閱讀次數:411197次
農村自建房化糞池怎么做?附方案及施工過程
閱讀次數:391783次
農村一層三間平房設計圖,告別土氣養老房,讓人忍不住點贊
閱讀次數:350581次
新農村二層樓房圖片造價12萬,挑一套回家建房吧!
閱讀次數:349126次
