
|
大家生活好了,現在去農村看一看,遍地都是一棟棟的獨棟小別墅,歐式美式全都有,唯獨咱們傳統的中式風格卻很少見。可能多人都覺得太土、不大氣。實際都是刻板印象在作怪,今天帶來5套新中式戶型,相信一定能打破這種偏見,趕緊來看看吧! 戶型1: 占地尺寸:12.2mX10.2m 建筑面積:311㎡
白墻灰瓦,外觀簡潔,前后錯落的屋頂更是靈動活潑。大量的木材的運用給人自然清新之感。絕對是一眼就可識別的西南部民居風格。
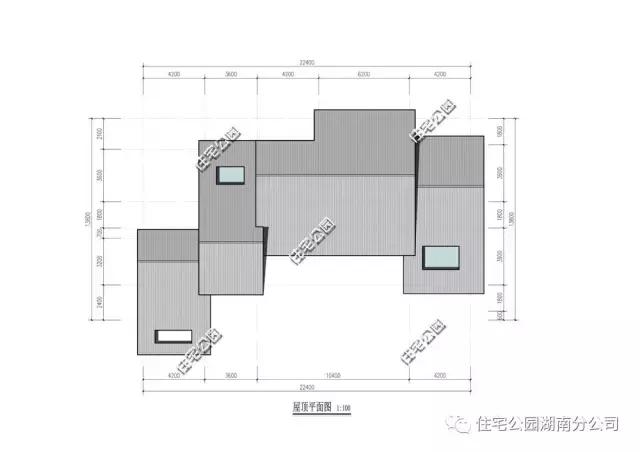
三層共設7室、3廳、7衛、1洗衣房、4陽臺、2露臺、1檐廊。 戶型2: 占地尺寸:9.8mX9.0m 建筑面積:176㎡
方正的戶型符合中式傳統美學。外墻下部鋪設米色瓷磚,上部涂刷白色墻漆,中部鋪設木質裝飾條,整體材質、色調搭配和諧自然。
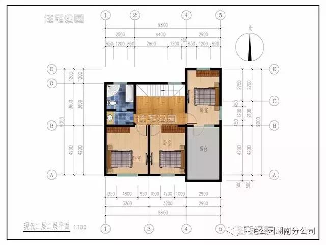
2層共設4臥室、1客廳、1餐廳、2盥洗室、2衛生間、1儲藏室、1露臺。 戶型3: 占地尺寸:22.6mX14m 建筑面積:431㎡
外觀上和第一套有異曲同工之妙,不過天窗的運用使得室內采光更好,再也不會白天室內黑漆漆而不得不開燈了。
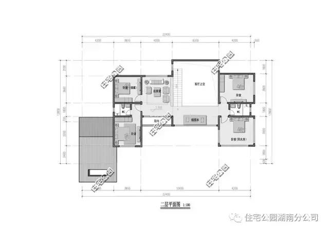
三層共設7室、3廳、1廚、3衛、1地下車庫、1儲藏室、1室外休閑區、1陽臺。 戶型4: 占地尺寸:14.5mX13.2m 建筑面積:228㎡
外觀簡潔大方,白墻灰瓦,有漢唐風氣。南北落地窗,采光通風俱佳。無需贅述,這就是屬于中國人的房子。
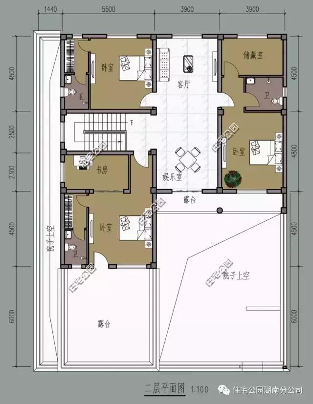
二層共設3室、2廳、1廚、4衛、1書房、2庭院。 戶型5: 占地尺寸:15mX20m 建筑面積:341㎡
這一棟外觀更加傳統,而特別之處就是在東南角留有院子,種有竹子。古人有寧可食無肉,不可居無竹。養竹賞竹一向是古人的一項賞心樂事。
二層共設4室、3廳、1堂屋、5衛、1廚 、2儲藏室、1車庫、2露臺。 你最喜歡哪套戶型呢? 圖紙之家-專注農村別墅/自建房設計18年,集合國內200余位經驗豐富的設計師,被評為口碑最好的農村建筑設計公司! |

蓋別墅圖紙新農村簡歐二層房屋設計圖,12米×12米左右
占地:128平方米左右
12米×10米左右一層別墅平房戶型圖及設計圖,造價低
占地:110平方米
地中海風格二層別墅設計圖方案,含外觀效果圖
占地:130平方米
帶商鋪挑高的三層別墅房屋設計圖,商鋪挑高,層高比較高
占地:118平方米
客廳中空三層復式別墅房屋設計圖,帶外觀效果圖
占地:145平方米
現代簡約時尚二層帶超大露臺農村別墅戶型,既可以休閑又可晾曬
占地:100.06平方米
95平方米農村四層房屋設計圖,8米X11米 ,預算37萬
占地:95平方米
200平方米別墅設計圖紙(含效果圖),農村別墅方案精選
占地:200.26平方米
給爸媽建養老房?100 平人字坡一層房太合適!簡約低調還實用
占地:102.6平方米
造價40萬三層大氣自建房設計圖紙,鄉村別墅建造圖
占地:159.609平方
130平方米新農村自建三層別墅設計施工圖,13x11米
占地:130平方米
私人二層農村小樓設計圖,外觀靚麗,富有現代氣息
占地:160平方米
新農村住宅設計圖紙含效果圖,方方正正的別墅方案
占地:134平方米左右
預算20萬的農村三層房屋設計圖方案,帶外觀效果圖
占地:115平方米
兩層農村自建二層樓設計圖紙,面寬12米左右
占地:131.2平方米
復式挑空現代簡約風三層別墅設計圖,簡單時尚最受年輕人最愛
占地:149.7平方米
經典三層小別墅設計圖紙(效果圖+全套cad建筑圖),新農村自建
占地:120平方米
三層別墅設計施工圖紙(含外觀效果圖)帶大露臺
占地:160平方米
五開間農村豪華三層別墅設計圖,大格局大氣派,大家庭建房首選
占地:227.04平方米
新款中式二層四合院住宅設計圖,農村自建帶露臺設計
占地:223平方米
推薦:10套新農村自建房設計圖,2026年最新設計
閱讀次數:4825737次
100套鄉村別墅圖片大全,2026年最新設計
閱讀次數:2492203次
6款農村蓋一層平房的設計圖,10萬元就能建起來
閱讀次數:1852637次
這11個一層農村自建房別墅火爆了朋友圈!我最喜歡戶型十!你呢
閱讀次數:750268次
農村6萬元建一層小別墅圖,你敢相信嗎
閱讀次數:567686次
農村5萬塊就能自建房,6套普通房子設計圖分享,你沒看錯!
閱讀次數:419410次
8套農村漂亮三間平房圖片,非常適合在農村修建!
閱讀次數:411197次
農村自建房化糞池怎么做?附方案及施工過程
閱讀次數:391783次
農村一層三間平房設計圖,告別土氣養老房,讓人忍不住點贊
閱讀次數:350581次
新農村二層樓房圖片造價12萬,挑一套回家建房吧!
閱讀次數:349126次
