
|
每一年都有很多人建房子,今年也不例外,設計師根據考察和地形分析,設計出了這款2018最新三層50萬以內2廳7臥別墅圖紙,落地窗+娛樂房+挑空客廳,戶型能夠滿足很多農村家庭的住房需求,可以說是一款漂亮、美觀、實用的三層樓農村別墅,下面一起來看這款戶型的詳細介紹。 圖紙屬性 層數: 三層 結構形式: 磚混結構 開間:12.4米 進深:13.1米 主體造價:48萬
本套三層樓農村別墅設計圖豪華漂亮,外立面設計充滿立體感,融入落地窗、多面體結構、陽臺、露臺、旋轉樓梯、挑空客廳、娛樂室、活動室等功能元素,契合現代人的住房需求和習慣,整體設計現代時尚。 設計功能
一層平面圖 一 層:門廳、臥室(帶衛生間)、娛樂房、挑空客廳、廚房、餐廳、公衛、旋轉樓梯
二層平面圖 二 層:客廳上空、書房(帶陽臺)、主臥(帶衛生間)、次臥×2、雜物間、公衛
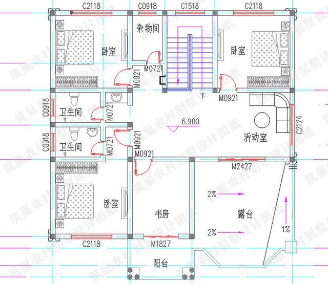
三層平面圖 三層:活動室、書房(帶陽臺)、主臥(帶衛生間)、次臥×2、雜物間、公衛、露臺 全套圖紙包含: 建筑圖:包含平面圖、立面圖、剖面圖、樓梯大樣圖、門窗尺寸、節點大樣 結構圖:包含地基、梁、柱、樓板配筋及大樣圖等 給排水圖:包含每層給排水平面圖及大樣圖等 電氣圖:包含每層照明平面圖、插座平面圖、弱電平面圖及系統圖等。 圖紙之家-專注農村別墅/自建房設計18年,集合國內200余位經驗豐富的設計師,被評為口碑最好的農村建筑設計公司! |

豪華農村帶露臺三層樓房別墅設計圖紙,占地200平方米左右
占地:200平方米
130平帶閣樓兩層半別墅房屋設計圖,含外觀效果圖
占地:130平方米
現代二層樓房圖片造價25萬,含全套設計圖,風格獨特
占地:多戶型可選
田園風格別墅設計圖及外觀圖片,樓中樓結構
占地:140平方米
小戶型三層現代風別墅設計圖,可別再說農村不適合現代風了
占地:92.34平方米
130平新農村三層房屋設計圖紙,預算30萬以內,蓋房推薦
占地:132平方米
2026農村漂亮的一層平房圖片平面圖與全套施工圖紙,戶型周正
占地:150平方米
20多萬的造價一層三合院農村自建房效果圖
占地:225.048平方米
125平方米三層新農村房屋建筑施工設計圖帶外觀圖
占地:126平方米
豪華高端三層帶地下室別墅設計圖,可帶電梯
占地:210平方米
高端大氣的三層新中式合院別墅設計圖紙及外觀效果圖
占地:203.4平方米
帶配房的二層農村小別墅設計圖,大方適用,耐看經濟
占地:152.28平方米
農村兩間三層房屋設計圖,含外觀圖片
占地:120平方米
豪華大氣三層農村自建房設計圖,經典大氣,百看不厭,新中式風
占地:141.75平方米
二層農村房屋設計圖紙,帶效果圖和全套施工方案圖
占地:多種戶型
農村二層帶電梯別墅設計圖,歐式風格,避免老人上下樓的麻煩
占地:179.94平方米
面寬14.5米三層獨棟別墅設計圖,經典設計,大氣之作
占地:123.85平方米
一層農房別墅設計圖紙,140平方米,面寬15米
占地:140平方米
160平方米現代新農村四合院兩層別墅施工圖紙及效果圖
占地:157平方米
好看實用農村2開間二層別墅設計圖,主體19萬
占地:117.36平方米
推薦:10套新農村自建房設計圖,2026年最新設計
閱讀次數:4825737次
100套鄉村別墅圖片大全,2026年最新設計
閱讀次數:2492203次
6款農村蓋一層平房的設計圖,10萬元就能建起來
閱讀次數:1852637次
這11個一層農村自建房別墅火爆了朋友圈!我最喜歡戶型十!你呢
閱讀次數:750268次
農村6萬元建一層小別墅圖,你敢相信嗎
閱讀次數:567686次
農村5萬塊就能自建房,6套普通房子設計圖分享,你沒看錯!
閱讀次數:419410次
8套農村漂亮三間平房圖片,非常適合在農村修建!
閱讀次數:411197次
農村自建房化糞池怎么做?附方案及施工過程
閱讀次數:391783次
農村一層三間平房設計圖,告別土氣養老房,讓人忍不住點贊
閱讀次數:350581次
新農村二層樓房圖片造價12萬,挑一套回家建房吧!
閱讀次數:349126次
