
|
前言:“堂屋”作為承擔農村住宅生產生活里必不可少的一部分,現在被有些建筑設計師忽視。而在真正的農村里,堂屋在農村的重要地位,不僅體現在日常供奉著祖先與神位,也在于重要的風俗節日作為舉行儀式的場地,如紅白喜事,家族議事等。”堂屋“正是傳統農村住宅之中的靈魂所在!下面小編今天為大家帶來這一套,有堂屋,有庭院的,適合農村人需求的新款農村三層樓房圖片!(超詳細)
宅院整體風格含蓄典雅,簡潔大氣。對傳統中式住宅風格有著很好的表現,符合大多數人對于農村房子質樸,舒適實用的需求。
參照戶型信息完整,看看是不是也符合您的需求?下面是更詳細平面的設計圖各間的大小與尺寸:
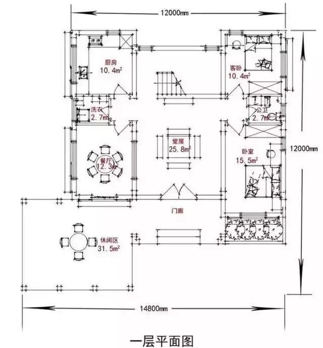
一層前廊作為農村人熟悉的部分,連通了休閑區,結合了房屋綠化。從正門進去,即是堂屋,沿襲了傳統的“堂屋”布局。格局簡明實用,一層臥室可以考慮為老人房,餐廳,廚衛一應俱全。
二層的家庭廳,滿足了家庭成員的私密活動,日常的娛樂,休閑。開放的大露臺,讓您能更親近鄉村的美麗景色,賞心悅目。兩間主臥包涵了獨立衛生間,良好的采光與朝向。小編都要羨慕了!
三層包涵了4間臥室,滿足了逢年過節,親朋好友的留住需要。儲藏間也方便農村的閑雜物品的存放。二十多平米的露臺,不管是休閑還是娛樂,足不出戶,您都能滿足! 效果圖全方位展示:
轉載請注明出自別墅設計網:http://www.bjcyqiyejia.com/ 千套別墅設計帶別墅圖片 |

好看的三層樓別墅圖片及全套建筑施工設計圖紙
占地:多戶型可選
兄弟三層雙拼房屋設計圖,帶效果圖,戶型好
占地:256平方米
275平方米新農村雙拼樓中樓戶型別墅設計圖紙及效果圖21X14米
占地:275平方米
面寬22米的高端三層自建房別墅設計圖,功能齊全
占地:222.47平方米
鄉村最美四合院設計圖及外觀效果圖片,國人的理想住宅
占地:280.62平方米
別致漂亮二層別墅設計圖紙,占地160平米左右,精致的外觀,讓人
占地:160平方米
農村三間兩層樓房設計圖,帶車庫,戶型簡單實用
占地:140平方米
帶商鋪挑高的三層別墅房屋設計圖,商鋪挑高,層高比較高
占地:118平方米
農村三層樓房設計圖紙及效果圖,經典自建圖紙
占地:201平方米
私人二層中式四合院別墅建筑設計圖,新農村經濟實用戶型
占地:145平方米
最新小別墅設計圖,復式三層,外觀非常漂亮
占地:158平方米
雙戶168平方米小戶型新農村雙拼樓房設計建筑圖紙帶外觀圖
占地:168平方米
多臥室復式二層別墅房屋設計圖,含外觀效果圖
占地:175平方米
高端大氣四層復式別墅房屋設計圖,含外觀效果圖
占地:270平方米
南方新農村三層別墅設計圖紙,含效果圖,帶車庫
占地:120平方米
開間8米的小戶型二層別墅設計圖,2開間占地不到60平
占地:56平方米左右
50萬左右農村豪華二層別墅設計圖 ,大廳中空,外觀精美
占地:210平方米
回村蓋一層養老房別墅設計圖紙,面寬16米四開間戶型圖
占地:127平方米左右
130平米最新氣派農村四層樓房設計圖,四層樓房圖片
占地:130平方米
好看又簡單二層仿古中式四合院樓房設計圖
占地:352平方米
11×10造價25萬帶神位平頂三層自建房設計圖
閱讀次數:29678次
2021年最流行的10套經典農村別墅,最愛那一套?
閱讀次數:25940次
進深8.5米,開間12米,帶堂屋的樓房設計圖怎么做?
閱讀次數:23817次
18萬搞定的農村二層別墅,詳細施工過程實拍!含別墅設計圖!
閱讀次數:17744次
5款帶落地窗的農村別墅,大氣的別墅就應該是這個樣子
閱讀次數:17217次
15套2017年最新潮二層農村別墅,這樣蓋既實用又上檔次!
閱讀次數:12834次
2021農村建的最多的2款二層小別墅戶型,爆款是有理由的
閱讀次數:11876次
農村自建房這樣預埋水電管,老師傅說規范又實用
閱讀次數:11471次
9X12米二層農村別墅,不超過規定面積還能有小院
閱讀次數:10618次
農村自建房打地基的費用是多少,需要注意哪些問題?
閱讀次數:10549次
