
|
有人說,我們老家根本建不出來你圖紙上那種效果,樓樓現在要用事實狠狠的回復那些質疑的人,為啥別人家也是農村的,建出來的房子甩你家好幾條街? 北京案例,實拍別墅效果圖:
一層平面圖:
二層平面圖:
江西案例,實拍別墅效果圖:
一層平面圖:
湖南案例,實拍別墅效果圖:
一層平面圖:
二層平面圖:
廣東案例,實拍別墅效果圖:
一層平面圖:
二層平面圖:
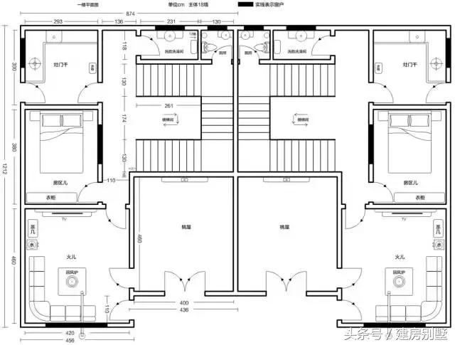
貴州案例,實拍別墅效果圖(雙拼):
一層平面圖:
二層平面圖:
樓樓目前就上傳五個省份的自建房案例,如果大家有別的省份鄉村別墅圖紙歡迎分享,分享是一種美德哦! 轉載請注明出自別墅設計網:http://www.bjcyqiyejia.com/ 千套別墅設計帶別墅圖片 |

帶車庫三層自建別墅設計圖紙,客廳中空,外觀洋氣時尚,這款戶
占地:170平方米
最新高端四層別墅外觀效果圖及全套設計圖,真土豪就這樣建
占地:174.08平方米
三層兩開間小面寬別墅設計圖紙帶外觀效果圖,95平方米
占地:94.61平方米
10米×13米最好看的農村三層樓房圖,客廳中空
占地:124平方米
120平方房子設計圖帶效果圖,農村自建房戶型推薦
占地:120平方米
經典二層農村自建房屋別墅設計圖紙,占地110平米左右
占地:110平方米
300平大戶型豪華三層別墅設計圖,帶總統套房
占地:300平方米
130平方米新農村自建三層別墅設計施工圖,13x11米
占地:130平方米
100平方建房子設計圖及效果圖,簡單實用的戶型設計
占地:97.3平方米
農村兄弟倆雙拼別墅房屋設計圖,外觀質樸
占地:195平方米
鄉村三層簡單自建房子設計圖,全部建好34萬左右,外觀簡潔
占地:127.912平方米
后面帶小院的農村房屋設計圖,適合鄉村自建
占地:300平方米
三層新農村別墅設計圖片及全套圖紙,外形對稱,帶露臺,這個戶
占地:160平方米
2021最受歡迎的三層農村小別墅設計圖紙,占地155平方米
占地:155平方米
高端豪華三層別墅住宅設計方案圖,歐式外觀風格
占地:170平方米
新款鄉村二層半別墅設計圖紙帶效果圖,三層別墅外觀圖片大全
占地:108.795平方米
農村簡單雙拼小戶型,簡單適用,客廳中空,總占地210平方米
占地:210平方米
140平方米三層豪華新中式別墅設計圖紙帶外觀效果圖
占地:141.35平方米
農村三層雙拼別墅戶型圖設計圖,整體外觀氣派
占地:220平方米
鄉村二層別墅設計圖,含外觀效果圖,設計師推薦
占地:140平方米
11×10造價25萬帶神位平頂三層自建房設計圖
閱讀次數:29678次
2021年最流行的10套經典農村別墅,最愛那一套?
閱讀次數:25940次
進深8.5米,開間12米,帶堂屋的樓房設計圖怎么做?
閱讀次數:23817次
18萬搞定的農村二層別墅,詳細施工過程實拍!含別墅設計圖!
閱讀次數:17744次
5款帶落地窗的農村別墅,大氣的別墅就應該是這個樣子
閱讀次數:17217次
15套2017年最新潮二層農村別墅,這樣蓋既實用又上檔次!
閱讀次數:12834次
2021農村建的最多的2款二層小別墅戶型,爆款是有理由的
閱讀次數:11876次
農村自建房這樣預埋水電管,老師傅說規范又實用
閱讀次數:11471次
9X12米二層農村別墅,不超過規定面積還能有小院
閱讀次數:10618次
農村自建房打地基的費用是多少,需要注意哪些問題?
閱讀次數:10549次
