圖紙介紹:便宜雙拼別墅設計圖,造價實惠,起居互不打擾,別墅外觀造型好看,時髦采用簡約典雅的配色藍色的屋頂搭配上磚紅色的墻體看起來熠熠生輝,占地方正,更通透的戶型,光照跟通風效果都不錯。尤其是選擇一層雙拼別墅,造價實惠一般農村家庭都能承受得住沒有壓力不像城里的商品房一樣,每年都要交各種費用,早鄉下蓋一棟別胡說,既可以照顧年老的父母,也可以留給將來的自己住。
占地面積:32.76m*14.1m,461.92平方米,單棟230.96平方米;
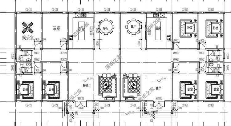
建筑層高:一層;
建筑高度:6.0米(含屋頂);
設計功能:
一層(一棟的戶型):客廳、餐廳、廚房、臥室x3(或茶室、娛樂室)、臥室(帶衛生間)、衛生間;
圖紙目錄:
建 筑 圖:一層平面圖、屋頂平面圖、正立面圖、背立面圖、左立面圖、右立面圖、1-1剖面圖、樓梯大樣圖、門窗表等;
結 構 圖:基礎平面布置圖、一層柱配筋圖、一層頂梁平法施工圖、一層頂板結構平面圖等;
給排水圖:一層給排水平面圖、給排水系統圖等;
電 氣 圖:一層照明平面圖、一層插座平面圖、一層弱電平面圖等;
全套圖紙+高清效果圖,拿到即可施工!



























































































