圖紙介紹:本方案四層(三層半)雙拼別墅房屋設計圖,外觀大氣、漂亮,戶型高端、有特色,一層相當于車庫、自定義功能,二、三、四主要是居住、娛樂。
占地面積:19.8m*16.8m,一層建筑面積325平方米,單戶160平方米左右;
建筑層高:四層;
建筑高度:18.96米(含屋頂);
設計功能(單戶):
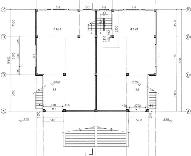
一 層:車庫、自定義功能;
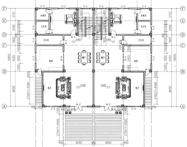
二 層:客廳、活動房、臥室(帶衣帽間和衛生間)、臥室、衛生間(門朝向自定義)、大露臺;
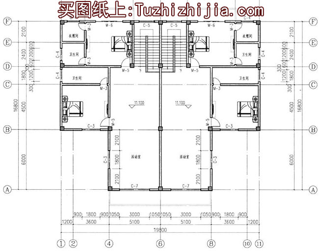
三 層:客廳、活動房、臥室(帶衣帽間和衛生間)、臥室、衛生間(門朝向自定義);
圖紙目錄:
建 筑 圖:建筑施工說明、一層平面圖、二層平面圖、三層平面圖、四層平面圖、屋頂平面圖、正立面圖、背立面圖、左立面圖、右立面圖、1-1剖面圖、樓梯大樣圖、節點大樣圖、門窗大樣圖、門窗表等;
結 構 圖:結構設計說明、大樣圖、基礎平面布置圖、一層柱配筋圖、二層柱配筋圖、三層柱配筋圖、四層柱配筋圖、一層頂梁平法施工圖、二層頂梁平法施工圖、三層頂梁平法施工圖、頂層梁平法施工圖、一層頂板結構平面圖、二層頂板結構平面圖、三層頂板結構平面圖、頂層板結構平面圖、樓梯配筋圖等;
給排水圖:給排水設計說明、一層給排水平面圖、二層給排水平面圖、三層給排水平面圖、四層給排水平面圖、衛生間大樣圖、給排水系統圖等;
電 氣 圖:電氣設計說明、配電系統圖、一層照明平面圖、二層照明平面圖、三層照明平面圖、四層照明平面圖、一層插座平面圖、二層插座平面圖、三層插座平面圖、四層插座平面圖、一層弱電平面圖、二層弱電平面圖、三層弱電平面圖、四層弱電平面圖、基礎接地平面圖、屋頂防雷平面圖等;
本方案為A3施工圖+彩色效果圖,拿到即可施工。






























































































