圖紙介紹:農村雙拼二層兄弟共建房別墅設計圖紙,面寬24米左右,外觀大氣戶型布局實用,兄弟這樣建房有面子!大落地方窗的設計大膽美觀,采光效果一流。外觀上左右對稱,四平八穩。門廊并立,更添建筑的大氣感,居住其中既能相互關照又相互獨立。對稱的雙拼別墅,兩家同建不僅能節約建房成本,還讓別墅顯得更為大氣體面。推門而入,房屋正中迎面設置玄關,作為進出別墅的過渡區間,客廳空間寬敞,與餐廳之間設有隔斷,保證了房間整體的空氣清新,二層兩戶分設有客廳,書房,三間衛生間和兩間臥室,二層主要為生活空間,合理的空間布局。書房的設計, 即可用于孩子平日學習也可以用于日常辦公。陽臺與客廳相連接,足夠大的空間更加的舒適。
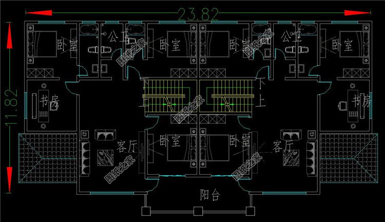
占地面積:23.82m*11.82m,270.936平方米左右,單戶135.468平方米左右;
建筑層高:二層
建筑高度:10.383米
設計功能:
一層房屋戶型:玄關、客廳、廚房、餐廳、臥室(帶衛生間)x2、衛生間;
二層房屋戶型:客廳、臥室(帶衛生間)x2、書房、衛生間、陽臺;
圖紙目錄:
建 筑 圖:建筑施工說明、建筑構造設計說明、一層平面圖、二層平面圖、屋頂平面圖、正立面圖、背立面圖、左立面圖、右立面圖、1-1剖面圖、門斗大樣圖、樓梯大樣圖、節點大樣圖、門窗表等;
結 構 圖:結構設計說明、結構常用大樣圖、基礎平面布置圖、一層頂梁結構平面圖、一層頂板結構平面圖、閣樓層梁結構平面圖、閣樓層板結構平面圖、坡屋頂梁結構平面圖、坡屋頂板結構平面圖、樓梯配筋大樣圖等;
給排水圖:給排水設計說明、一層給排水平面圖、二層給排水平面圖、屋頂給排水平面圖、衛生間給排水詳圖、給排水系統圖等;
電 氣 圖:電氣設計說明、配電系統圖、一層照明平面圖、二層照明平面圖、一層插座平面圖、二層插座平面圖、一層弱電平面圖、二層弱電平面圖、基礎接地平面圖、屋頂防雷平面圖等;






























































































