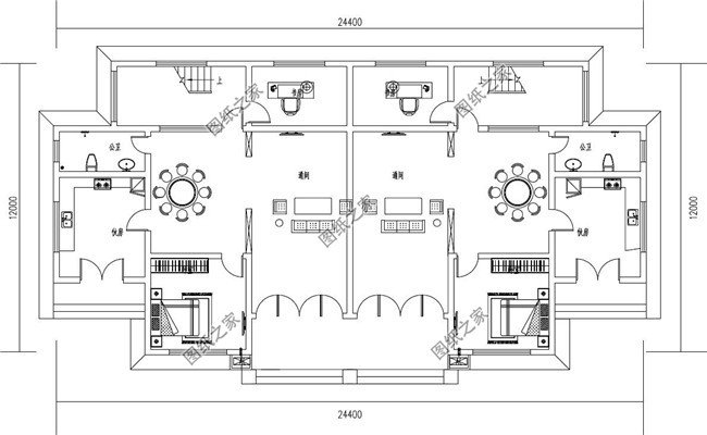
圖紙介紹:250平方米農村二層雙拼別墅建筑圖紙及效果圖,農村自建房圖片,別墅為典型的歐式風格,這款既可以雙拼,建成獨棟也是超美的一款。室內布局都是一致的,一層有一間臥室,廚房和餐廳一體,方便起居。二層設計3間臥室,臥室朝南并帶有大陽臺。
占地面積:24.4m*12m,254平方米左右,單戶127平方米左右;
建筑層高:二層
建筑高度:11.03米
設計功能:
一層房屋戶型:客廳、廚房、餐廳、書房、衛生間、臥室;
二層房屋戶型:起居室、主臥(帶書房)、次臥×2、衛生間、陽臺;
圖紙目錄:
建 筑 圖:建筑施工說明、建筑構造設計說明、一層平面圖、二層平面圖、屋頂平面圖、正立面圖、背立面圖、左立面圖、右立面圖、1-1剖面圖、門斗大樣圖、樓梯大樣圖、節點大樣圖、門窗表等;
結 構 圖:結構設計說明、結構常用大樣圖、基礎平面布置圖、一層頂梁結構平面圖、一層頂板結構平面圖、閣樓層梁結構平面圖、閣樓層板結構平面圖、坡屋頂梁結構平面圖、坡屋頂板結構平面圖、樓梯配筋大樣圖等;
給排水圖:給排水設計說明、一層給排水平面圖、二層給排水平面圖、屋頂給排水平面圖、衛生間給排水詳圖、給排水系統圖等;
電 氣 圖:電氣設計說明、配電系統圖、一層照明平面圖、二層照明平面圖、一層插座平面圖、二層插座平面圖、一層弱電平面圖、二層弱電平面圖、基礎接地平面圖、屋頂防雷平面圖等;
全套圖紙+高清效果圖,拿到即可施工!






























































































