圖紙介紹:鄉墅建房三層半別墅設計圖紙,農村四層豪宅戶型方案圖推薦!這款戶型的墻面裝飾有用到少量的淺黃色文化石,還有大面積的米黃色真石漆裝飾,屋頂用磚紅色琉璃瓦,背面鑲嵌有多個窗戶,加強室內采光,窗戶之間可用浮雕裝飾,能加強美觀性。多邊形窗的使用,同樣能加強造型的立體感,且室內采光更好,大門處的門廳設計很重要,配以方形羅馬柱很大氣。屋面的俯瞰效果,同樣很讓人心動,尤其是搭配涼亭,效果更好。
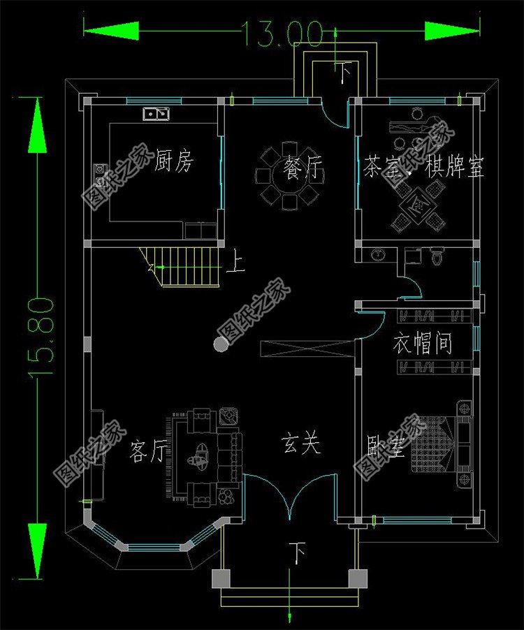
占地面積:13m*15.8m,185.04平方米左右;
建筑層高:四層;
建筑高度:16.144米(含屋頂);
設計功能:
一層戶型:玄關、客廳、廚房、餐廳、茶室(棋牌室)、臥室(帶衣帽間)、衛生間;
二層戶型:客廳、書房、臥室(帶衛生間)、臥室x3、衛生間、陽臺;
三層戶型:客廳、書房、臥室(帶衛生間)、臥室x3、衛生間、陽臺;
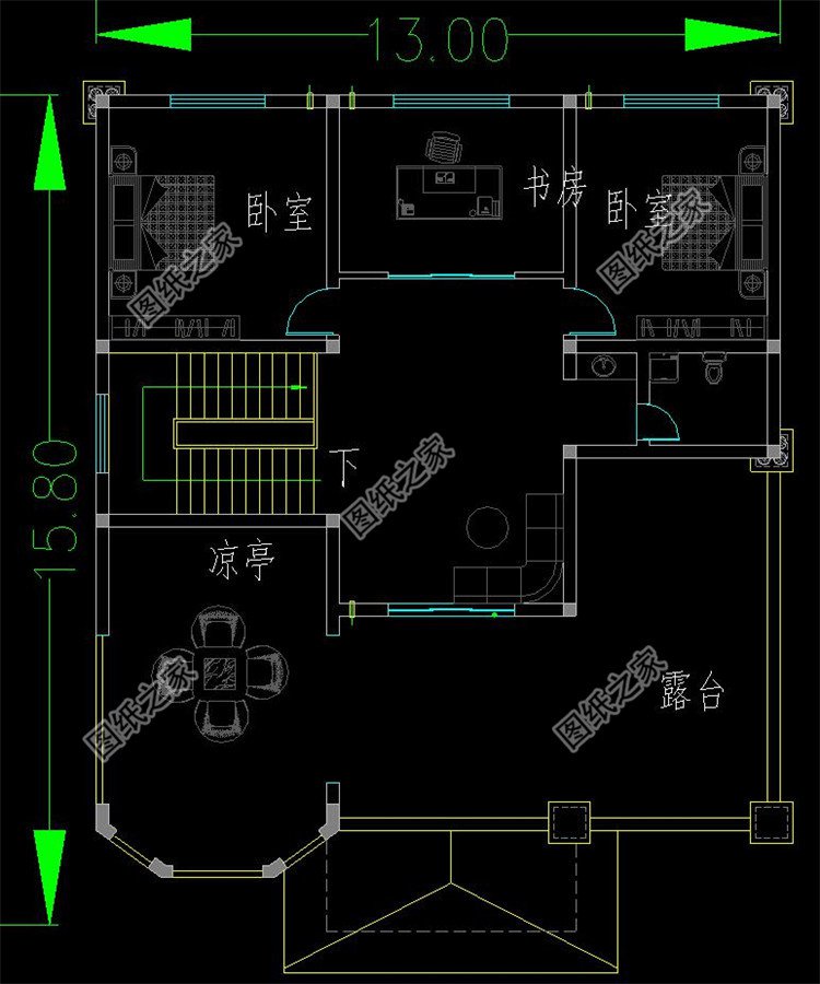
四層戶型:書房、臥室x2、衛生間、露臺、涼亭;
圖紙目錄:
建筑圖:建筑設計說明、一層平面圖、二層平面圖、三層平面圖、四層平面圖、屋頂平面圖、正立面圖、背立面圖、左立面圖、右立面圖、1-1剖面圖、樓梯大樣圖、門斗大樣圖、節點大樣圖、門窗表等;
結 構 圖:結構設計說明、基礎平面布置圖、一層頂梁結構平面圖、一層頂板結構平面圖、二層頂梁結構平面圖、二層頂板結構平面圖、三層頂梁結構平面圖、三層頂板結構平面圖、坡屋頂梁結構平面圖、坡屋頂板結構平面圖、樓梯配筋大樣圖、節點大樣圖等;
給排水圖:給排水設計說明、一層給排水平面圖、二層給排水平面圖、三層給排水平面圖、四層給排水平面圖、屋頂給排水平面圖、衛生間大樣圖、給排水系統圖等;
電 氣 圖:電氣設計說明、配電系統圖、弱電系統圖、一層照明平面圖、二層照明平面圖、三層照明平面圖、四層照明平面圖、一層插座平面圖、二層插座平面圖、三層插座平面圖、四層插座平面圖、一層弱電平面圖、二層弱電平面圖、三層弱電平面圖、四層弱電平面圖、基礎接地平面圖、屋頂防雷平面圖等;














































































