圖紙介紹:四層新農村復式別墅自建房設計圖,外觀對稱設計,旋轉樓梯戶型,豪華到令人羨慕!經典沉穩的外觀造型與厚重簡約的立柱設計,整棟建筑威嚴莊重自帶氣場。一層大堂屋和挑空的客廳設計,非常的氣派,傳統和現代相互結合設計,正是符合新農村建房的標準;二層設有兩間臥室帶套衛,室內客廳和生活陽臺;三層有三室一廳兩衛,設有一間棋牌室,是日常的娛樂場所,外配陽臺3個,四層有一間臥室帶獨立衛生間,帶茶室,營造一種文人雅致的閑適意境。室外雙露臺設計,滿足晾曬和休閑的需求。
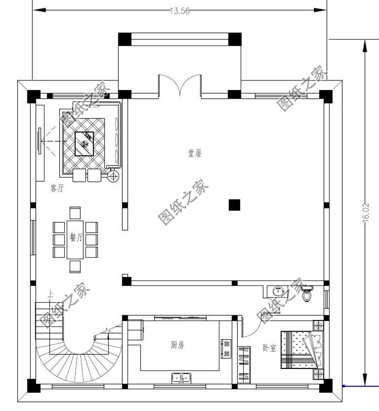
占地面積:13.56m*16.02m,188.23平方米左右;
建筑層高:四層;
建筑高度:16.08米(含屋頂);
設計功能:
一層戶型:堂屋、客廳、廚房、餐廳、臥室、衛生間;
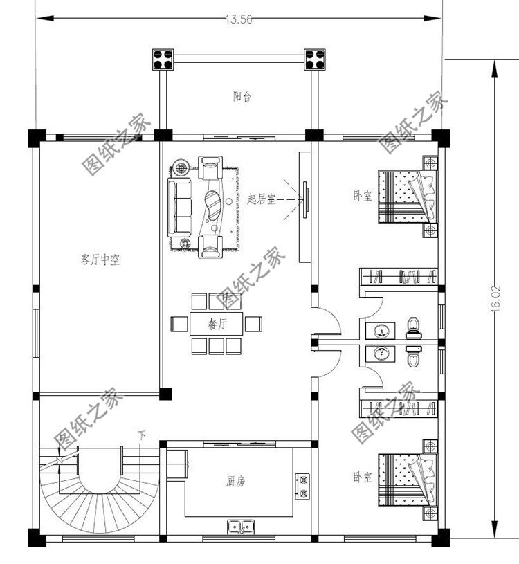
二層戶型:客廳上空、起居室、廚房、餐廳、臥室(帶衛生間)x2、陽臺;
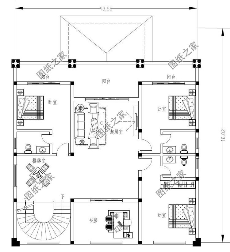
三層戶型:起居室、棋牌室、書房、臥室(帶衛生間)x3、陽臺x3;
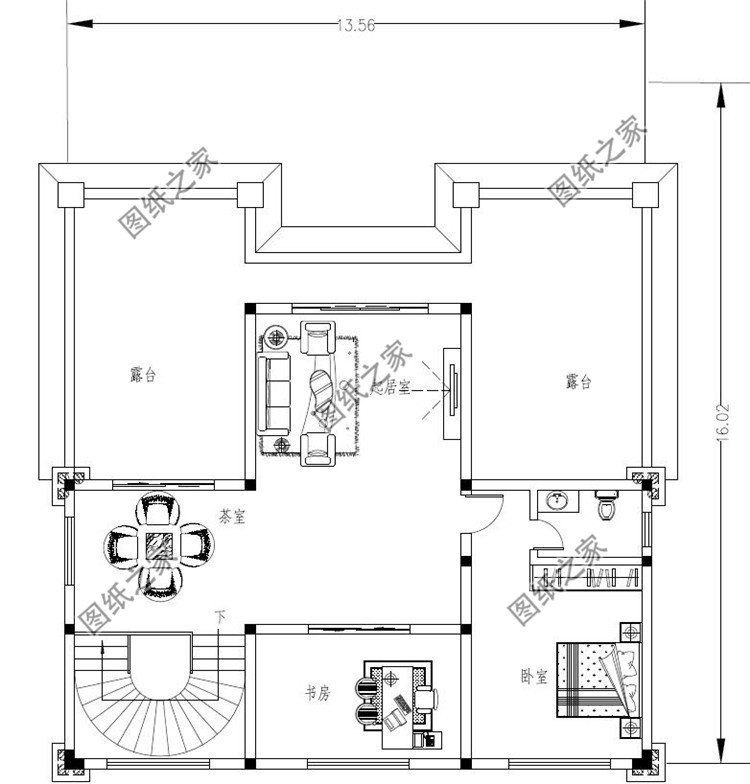
四層戶型:起居室、書房、茶室、臥室(帶衛生間)、露臺x2;
圖紙目錄:
建筑圖:建筑設計說明、一層平面圖、二層平面圖、三層平面圖、四層平面圖、屋頂平面圖、正立面圖、背立面圖、左立面圖、右立面圖、1-1剖面圖、樓梯大樣圖、門斗大樣圖、節點大樣圖、門窗表等;
結 構 圖:結構設計說明、基礎平面布置圖、一層頂梁結構平面圖、一層頂板結構平面圖、二層頂梁結構平面圖、二層頂板結構平面圖、三層頂梁結構平面圖、三層頂板結構平面圖、坡屋頂梁結構平面圖、坡屋頂板結構平面圖、樓梯配筋大樣圖、節點大樣圖等;
給排水圖:給排水設計說明、一層給排水平面圖、二層給排水平面圖、三層給排水平面圖、四層給排水平面圖、屋頂給排水平面圖、衛生間大樣圖、給排水系統圖等;
電 氣 圖:電氣設計說明、配電系統圖、弱電系統圖、一層照明平面圖、二層照明平面圖、三層照明平面圖、四層照明平面圖、一層插座平面圖、二層插座平面圖、三層插座平面圖、四層插座平面圖、一層弱電平面圖、二層弱電平面圖、三層弱電平面圖、四層弱電平面圖、基礎接地平面圖、屋頂防雷平面圖等;


















































































