建筑占地面積:9.8m*13m=130平方米;
建筑面積:455平方米
造價:50萬
建筑層數:四層;
建筑高度:14.5米(含屋頂)坡屋頂;
設計功能:
一層:臥室、廚房、衛生間、餐廳、起居室;
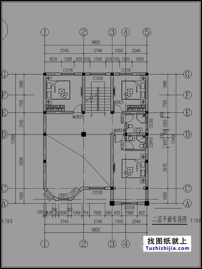
二層:3間臥室、2間衛生間;
三層:3間臥室、衛生間;
四層:臥室、衛生間、露臺。
圖紙目錄:
建筑:一層平面布局圖、二層平面布局圖、三層平面布局圖、四層平面布局圖、屋面平面布置圖、一層樓梯平面圖、二三層樓梯平面圖、四層樓梯平面圖、A-A剖面、南立面圖、東立面圖、北立面圖、西立面圖、1-1剖面圖、建筑設計說明;
結構:基礎平面布置圖、一層梁平法配筋圖、一層板配筋圖、二層梁平法配筋圖、二層板配筋圖、三層梁平法配筋圖、三層板配筋圖、屋面梁平法配筋圖、屋面板配筋圖、柱平法配筋圖、一層樓梯平面圖、二三層樓梯平面圖、四層樓梯平面圖、A-A剖面、結構設計總說明、現澆梁內外折角配筋示意圖、上人孔加強筋詳圖、圈梁遇通氣孔大樣、圈梁遇洞口作法、廚房、衛生間、陽臺反沿大樣、廚房衛生間煙道孔洞加強筋大樣、檐口陰角加筋示意圖、檐口陽角加筋示意圖、節點大樣、1張效果圖。
本工程屬磚混結構;建筑層數為四層,建筑高度為:14.520米;建筑結構安全等級:二級;設計使用年限:50年;建筑耐火等級:二級;抗震設防烈度:小于六度;屋面防水等級:Ⅱ級。






















































































